
This 138,000-square-foot, four-story campus social hub, designed by Bjarke Ingels Group with Rockwell Group as Interior Architects and Shepley Bulfinch as Architect of Record, is intended to enhance creative expression and social engagement through its features including a 250-seat theater, dance studio, dining hall, and various outdoor gathering spaces.
Know MoreThe NIH's new 630,000 sq ft Surgery, Radiology and Lab Medicine (SRLM) building encompasses surgical suites, patient rooms, research labs, offices, conference areas, and collaborative workspaces, along with an 82,000 sq ft renovation of the main hospital’s clinical research wing and a new 780-vehicle parking garage featurin..
Know More

The proposed project aims to provide comprehensive, patient-centered programs and services, featuring an expanded emergency room, private patient rooms. The design offers full cancer services including radiation and infusion, further enhanced by a medical office building that would host approximately 50 specialty physicians on the same campus.
Know MoreA public community College has initiated a project to transform a library on Campus into a dynamic center for social and academic engagement within its community, for which the architects have been commissioned to design this renovation. The project involves a 7-story concrete frame structure with flat slabs and drop panels across the ground and six upper floors, with the renovation of levels 1, 2, and 3, aiming to deliver well-integrated connections between new and existing building components.
Know More

This modernization project, a key part of the a major US city’s transforming airport, involves a three-story expansion. To ensure efficient and seamless integration of the proposed design with the existing infrastructure, the Fractile team was selected to provide a laser scan and 3D models of the current building systems.
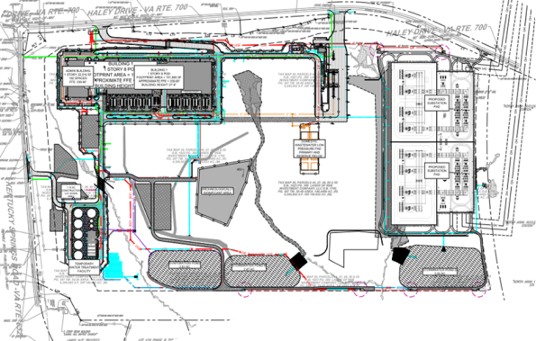
Know MoreThe proposed development on a 150-acre site in Mineral, Virginia, involves the construction of a data center campus spanning 150 acres, featuring eight data hall facilities exceeding 1.6 million square feet and 390 megawatts, alongside a central administration building, two onsite power distribution substations, and a water treatment facility, necessitating massive site work exercise including tree clearing, paving, utilities, stormwater management infrastructure, and landscaping.
Know More

This Maryland, was a classic transit-oriented affordable housing development (TOD) featuring a building comprising a 1-story Type 1A concrete podium with below-grade S-2 parking and 5 stories of Type 3A wood construction above. This development encompasses 193 residential units (R-2), amenity space (A-3), a leasing office (B), and retail (M) at the ground level, capitalizing on its crucial location to offer convenient public transit access in the area, and the wider region.
Know MoreYears of Combined experience
Projects completed
Clients worked With
At Fractile, you'll work on impactful projects, learn from seasoned leaders, and grow your technical craft. If you're committed to excellence, we're committed to you.